Адрес:
115035 Москва, Садовническая наб., дом 79
Телефон:
+7 (499) 705-88-82
(работаем Пн-Пт с 10 до 20)
Электронная почта:
Аренда помещения в ЦАО, м. Павелецкая, ул. Большой Строченовский переулок, дом 4с1
Лот: ЛВ417-a
Информация
- Тип помещения ПСН
- Тип здания Жилое
- Этаж 1
- Этажность 6
- Материал стен Кирпич
- Перекрытия Железобетонные
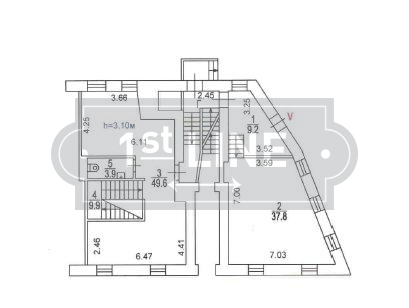
- Высота потолков 3,1
- Окна Витрины
- Вход Два отдельных входа
- Состояние документов Нежилое помещение
- Общая площадь 184.20 м2
- Электрическая мощность 60 кВт
- Год постройки 1912
- Отделка Требуется косметический ремонт
Общая площадь
184.20 м2
Аренда
Сдано
Похожие объекты
Округ ЦАО
Площадь 29.80 м2
Павелецкая (Замоскворецкая)
Лот: ЭК3053-a
Аренда помещения
В месяц 800 000 ₽
за м2 в год - 322 148 ₽
Округ ЦАО
Площадь 189.50 м2
Краснопресненская
Улица 1905 года
Баррикадная
Лот: РС3119-a
Аренда помещения
В месяц 1 250 000 ₽
за м2 в год - 79 156 ₽
Округ САО
Площадь 182.20 м2
Аэропорт
Лот: КН3148-a
Аренда помещения
В месяц 950 000 ₽
за м2 в год - 62 569 ₽
Расположение
-
Округ ЦАО
-
Метро Павелецкая (Замоскворецкая), Добрынинская, Серпуховская
-
Улица Большой Строченовский переулок
-
Дом 4с1
-
Расстояние до метро 5 мин пешком
Финансовые показатели
-
Налогообложение УСН
-
Эксплуатационные расходы(коммунальные платежи / электричество / связь) Оплачивает арендатор
Недвижимость для бизнеса © 2026