Адрес:
115035 Москва, Садовническая наб., дом 79
Телефон:
+7 (499) 705-88-82
(работаем Пн-Пт с 10 до 20)
Электронная почта:
Аренда помещения в ЦАО, м. Парк Культуры, ул. Пречистенская набережная, дом 15с1
Лот: РС523-a
Информация
- Тип помещения ПСН
- Тип здания Административное
- Этаж 1
- Этажность 4
- Материал стен Кирпич
- Высота потолков 5,20
- Окна Витрины
- Вход Отдельный с фасада
- Состояние документов Нежилое помещение
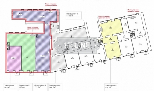
- Общая площадь 348.60 м2
- Электрическая мощность 82 кВт
- Год постройки 1882
- Отделка Требуется косметический ремонт
Общая площадь
348.60 м2
Аренда
Сдано
Расположение
-
Округ ЦАО
-
Метро Парк культуры (Сокольническая)
-
Улица Пречистенская набережная
-
Дом 15с1
-
Расстояние до метро 7 мин пешком
Финансовые показатели
-
Эксплуатационные расходы(коммунальные платежи / электричество / связь) Оплачивает арендатор
Недвижимость для бизнеса © 2026