Адрес:
115035 Москва, Садовническая наб., дом 79
Телефон:
+7 (499) 705-88-82
(работаем Пн-Пт с 10 до 20)
Электронная почта:
Продажа и аренда помещения в СВАО, м. Бибирево, ул. Бибиревская, дом 10к1
Лот: АЮ911
Информация
- Тип помещения ПСН
- Тип здания Административное
- Этаж 1
- Этажность 10
- Материал стен Панели
- Перекрытия Железобетонные
- Высота потолков 2,7
- Окна Витрины
- Вход 2 отдельных
- Состояние документов Нежилое помещение
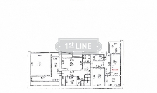
- Общая площадь 225.60 м2
- Электрическая мощность 35,1
- Отделка Требуется косметический ремонт
Общая площадь
225.60 м2
Продажа
Продано
Расположение
-
Округ СВАО
-
Метро Бибирево
-
Улица Бибиревская
-
Дом 10к1
-
Расстояние до метро 3 мин. пешком
Финансовые показатели
-
Доходность 10,8 %
-
Окупаемость 9,3 лет
Описание объекта
Помещение расположено в бизнес-центре "Мела".
Ближайшее окружение: гипермаркет "Лента", магазин женской одежды "INCITY", ресторан быстрого питания "KFC", салон оптики "Линзмастер", салон связи "МТС", магазин спортивного питания "5lb", магазин обуви и др.
Площадь поэтажно: 1-й этаж − 133.8 кв.м, подвал − 91.8 кв.м.
Недвижимость для бизнеса © 2026