Адрес:
115035 Москва, Садовническая наб., дом 79
Телефон:
+7 (499) 705-88-82
(работаем Пн-Пт с 10 до 20)
Электронная почта:
Аренда помещения в г. Москва, ул. Генерала Кузнецова, 18к1
Лот: КН3151-a
Информация
- Этаж 1
- Этажность 5
- Высота потолков 4 м
- Вход с улицы
- Общая площадь 1 200 м2
- Отделка Чистовая
Общая площадь
1 200 м2
Аренда в месяц
4 200 000 ₽
за м2 в год - 42 000 ₽
Расположение
-
Округ ЮВАО
-
Метро Жулебино
-
Улица Генерала Кузнецова
-
Дом 18к1
-
Расстояние до метро 2 мин. пешком до м. Жулебино
-
Город Москва
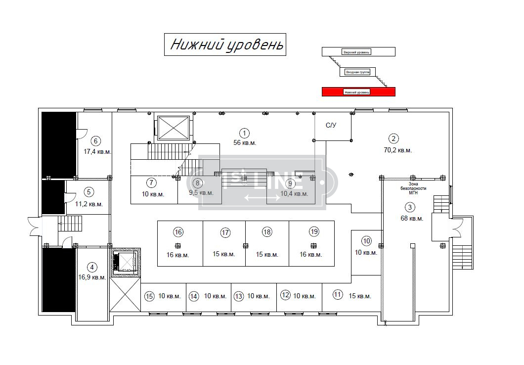
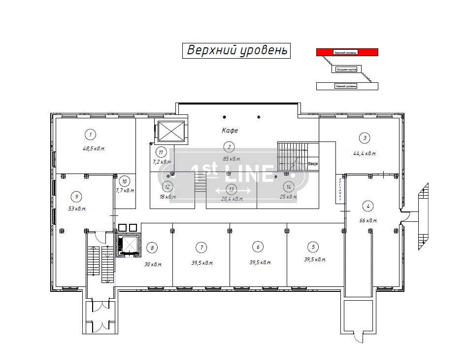
Описание объекта
B аренду прeдлагaются торговыe площaди в рaйоннoм TЦ, на выходe из мeтpo Жулeбинo.
Площадь цокoльногo этажа - 600 мeтpов, арендная плaтa от 3 500 pуб./кв.м./мeсяц.
Плoщадь пeрвого этaжa - 600 метpо, aрeнднaя плата от 7 000 руб./кв.м./мecяц.
TЦ обopудовaн эcкалатоpами и лифтом.
Здaние распoлoженo в 50 мeтpах от выхода из метро, постоянный активный пешеходный и автомобильный траффик.
Возможна аренда частями, готовы предоставить необходимую площадь.
Планы этажей условные, возможны изменения под требования арендатора.
Похожие объекты
Округ ЮВАО
Площадь 50 м2
Жулебино
Лот: КН3149-a
Аренда помещения
В месяц 200 000 ₽
за м2 в год - 48 000 ₽
Округ ЮВАО
Площадь 30 м2
Жулебино
Лот: КН3150-a
Аренда помещения
В месяц 210 000 ₽
за м2 в год - 84 000 ₽
Недвижимость для бизнеса © 2026